Taras Belik新作,一个三口家的公寓,总面积97㎡,天花板高度2.7m。有一个超过5㎡的阳台,毗邻客厅,并把它变成了一个开放的休息区。空间采用翡翠色使室内更加丰富和深邃。

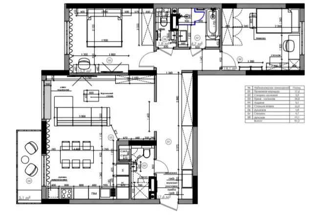
一个面积为34.8㎡的开放空间,将厨房、餐厅和休息区统一起来。空间的统一色彩是浓郁的翡翠色,其明亮的色调在白色的环境中显得特别有优势。为了照亮餐厅空间,选择了纽约设计师Beck Brittain Seeds的吊灯。
公寓总共有三间浴室,其中两个面积为4.7㎡和3.2㎡,另一个是1.8㎡的淋浴间。现代创新技术使设计无缝的淋浴房成为可能,合理布局,使空间看起来更大。
色彩丰富的主卧,背景郁郁葱葱的丛林画面,相当吸引人。床的右侧是一个带透明门的衣柜,其他还包括一个电视柜,一台电视机,一个梳妆台。没有主灯,床头两侧放置水滴形式的吊灯,仿佛落在鲜绿色的叶子上。
一个独立的客用浴室,墙面的装饰,使用了这间公寓内部相同的材料,强调统一的形式。天然橡木制成的细节在浴室的白色墙壁的背景下脱颖而出,并与空间的纹理相结合。
儿童区约14㎡,设置了工作场所、休闲区、运动角和存储系统。这里有火红色和绿松石色,房间的墙壁、运动器材、衣服和书籍的衣柜都是用它们的颜色来决定的。



